Предназначен для измельчения канистр из полимерных материалов, ПЭТ-бутылок, одноразовой полимерной посуды, тонкостенной полимерной упаковки и других подобных изделий и материалов.
Технические характеристики
Производительность (в зависимости от перерабатываемого материала и диаметра  отверстий в калибровочной  решётке), 100-250 кг/час 
Электроснабжение 380 В
Мощность   электродвигателя, 7,5 кВт 
Частота  вращения  ротора, 1500 об/мин 
Количество  ножей на валу  ротора, 9 шт. 
Диаметр отверстий в калибровочной  решётке,4-30  мм 
Максимальная толщина стенки перерабатываемых отходов, 2 мм 
Максимальные   размеры  перерабатываемых тонкостенных  изделий, 350x300x200 мм 
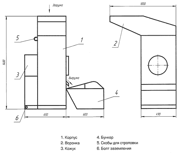
Габаритные  размеры измельчителя, 1000x650x1400 мм 
Масса, 280 кг
| Другие позиции оборудования | |
							
					 
				
				Дробилка УДР 300 		 | 
		
			 Дробилка поролона ВС 50
				 
					 |